Skip to main content
Close menu William & Mary

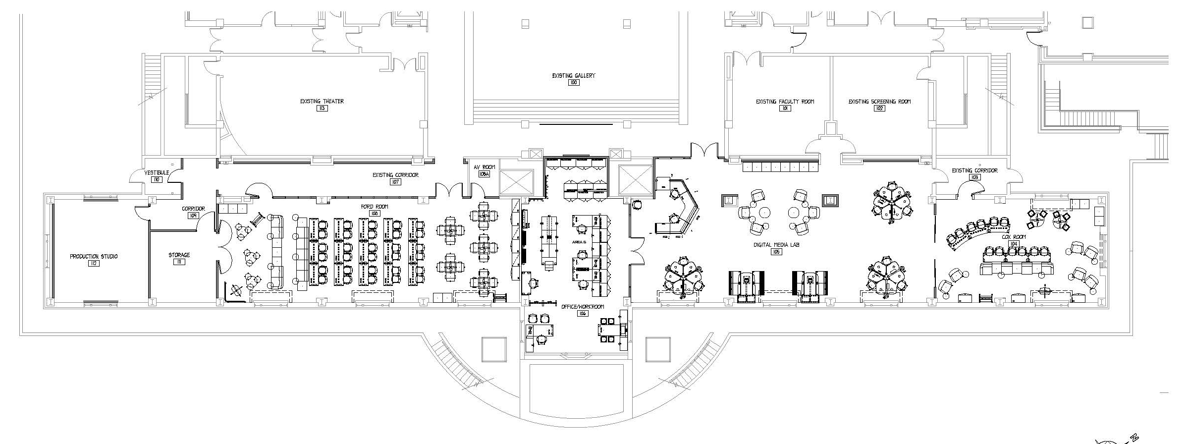
Swem Library's media center to undergo major renovation

Drawn up
Drawn up This architectural rendering shows proposed details of the new digital media lab of Swem's Media Center. Image courtesy of Swem Library

During the fall 2014 semester, Swem Library’s Media Center will undergo a significant renovation.

This project will transform roughly 11,000 square feet on the library’s ground floor and provide improvements to an already popular space at William & Mary, allowing the library to explore new modes of instruction and increase its ability to deliver multimedia services to the campus. With these enhancements, Swem will provide an inspired space where creative work and experimentation can flourish.

Changes coming to the newly renovated Media Center include:

  • An open and vibrant digital media lab with enhanced hardware and software for specialized multimedia work as well as collaborative spaces,
  • Two new classrooms intentionally designed for maximum flexibility and adaptability both in furnishings and new media technologies,
  • A dedicated interview/production studio equipped to provide support for increasing demand for professional documentary production and oral histories, and
  • An open and collaborative work space for Swem staff and its campus partners.

Click for larger image of rendering.The renovation will also involve relocating the library’s popular acoustically-isolating production studios to another available space on the ground floor.

The estimated cost for the renovation project is $2 million, and is being funded in part by private donations. Construction will begin in September, and the center is slated to open in early spring 2015.

Since opening in 2006, the demand on the Media Center has steadily increased as technology continues to evolve and digital literacy skills play a more vital role in academia and the workplace.

“The center fills a unique niche, enabling our students to experiment with a wide variety of digital media including video and digital cameras and cutting-edge film production software—innovative tools that will enable them to meet the demands of today’s rapidly changing job market,” said W&M Dean of University Libraries Carrie Cooper.

Swem Library expects continued growth in demand for services and spaces in coming years. The library’s technology-enhanced spaces already experience high usage: in 2012, the media studios and adjacent classrooms were booked 7,321 times. Current students are requesting greater access to better multi-media equipment and facilities for a broad spectrum of projects.

“We project that demand for digital media labs and training will at least triple over the next five years as we fulfill existing unmet demand, serve growing numbers of majors in media-related disciplines, and, most importantly, implement new digital literacy requirements in the university’s revised general education curriculum,” said Troy Davis, Swem’s director of media services.

The Media Center provides valuable services to support teaching, research and digital projects to students and faculty across disciplines from film and media studies to business management to marine science. Projects range from recording oral histories to producing political campaign television ads to creating musical scores.

Dorothy Ibes, professor of environmental science and policy, partnered with media center staff last spring to design an assignment for her science communication course. Staff organized workshops for her students on video production and photography, and students used their newly-acquired media skills to produce mini movies, podcasts and photo essays.

“Instantly the thrilled students (with equipment in hand) were off recording video, audio and images, and within months they had polished media projects ready to present to a room of faculty, staff and area community members, Ibes said.

“The value of this team and the resources and support they provide the William & Mary community is inestimable,” she added. “The upcoming renovation is sure to amplify these benefits for faculty and students in an invaluable way, particularly in a time when media skills are necessary for success in so many occupations.”

Tim Barnard, professor of American studies, credits the Media Center with playing a central role in the College’s commitment to student-centered, hands-on teaching and learning.

“All I have learned and experienced through my time and collaborations with the Swem Media Center has transformed my teaching, my interests and endeavors as a scholar, and my relationships with my students. When I'm in the Media Center, the binary of teacher/student dissolves away and we move to a new place of uniquely inspired and inspiring education as a shared practice,” he said.

During construction, patrons can check out cameras and other media equipment at the circulation desk. The production studios will be closed, but the Mac computers and equipment located in the studios have been relocated to the area directly across from the research desk, on the first floor. Media Center staff members will be at the research desk for assistance and consultations.

In April 2015, the library will celebrate the grand opening of the Media Center with a ribbon-cutting event. The library welcomes students, faculty, W&M staff, alumni and our supporters to celebrate this new, exciting development. More details are to come.

For updates on the renovation and to view project blueprints and other materials, visit the renovation website.