Griffin Hall
Dedicated in 1968.
Griffin (A-E) is part of the Green & Gold Village (GGV), which is comprised of three Griffin (A-E), Eagle (F-J), and Lion (K-M) halls that house approximately 35 students in each building. Residents living in GGV enjoy easy access to the intramural sports fields, Campus Rec, Zable Stadium and the Commons Dining Hall. Each hall has a communal kitchen, laundry machines, and large lounges for study and recreation.
Tags:
Location & Building Accessibility
Explore nearby! Griffin Hall offers convenient access to the intramural sports fields, Campus Recreation, Zable Stadium and the Commons Dining hall.
700C Ukrop Way
Williamsburg, VA
Mailing & Shipping Info
Amenities
-
Coed Housing
The first floor is eligible for both gender-inclusive & single-gender rooms. The second & third floors are single-gender by floor.
-
Partially Air-Conditioned
Air conditioning in lounges & third-floor bedrooms only.
-
Communal Kitchen
Full kitchen on the first floor.
-
Laundry
Laundry room on the lower level.
-
Smoke-Free
All W&M residence halls are smoking & vape free.
-
Hall Bath
One hall bath on each floor, except the first floor, which has single-occupant use baths.
-
Lounge & Study Areas
A large lounge for study & recreation is located on the lower level.
-
Wireless & Wired Internet
Wireless internet service is available in all residence halls. An ethernet card and cable are required for wired internet.
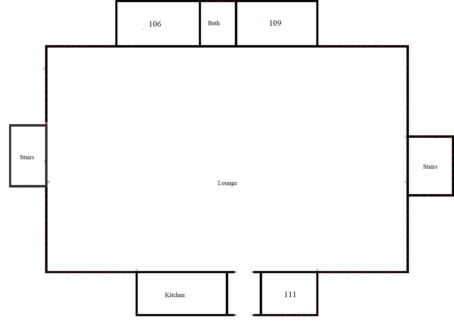
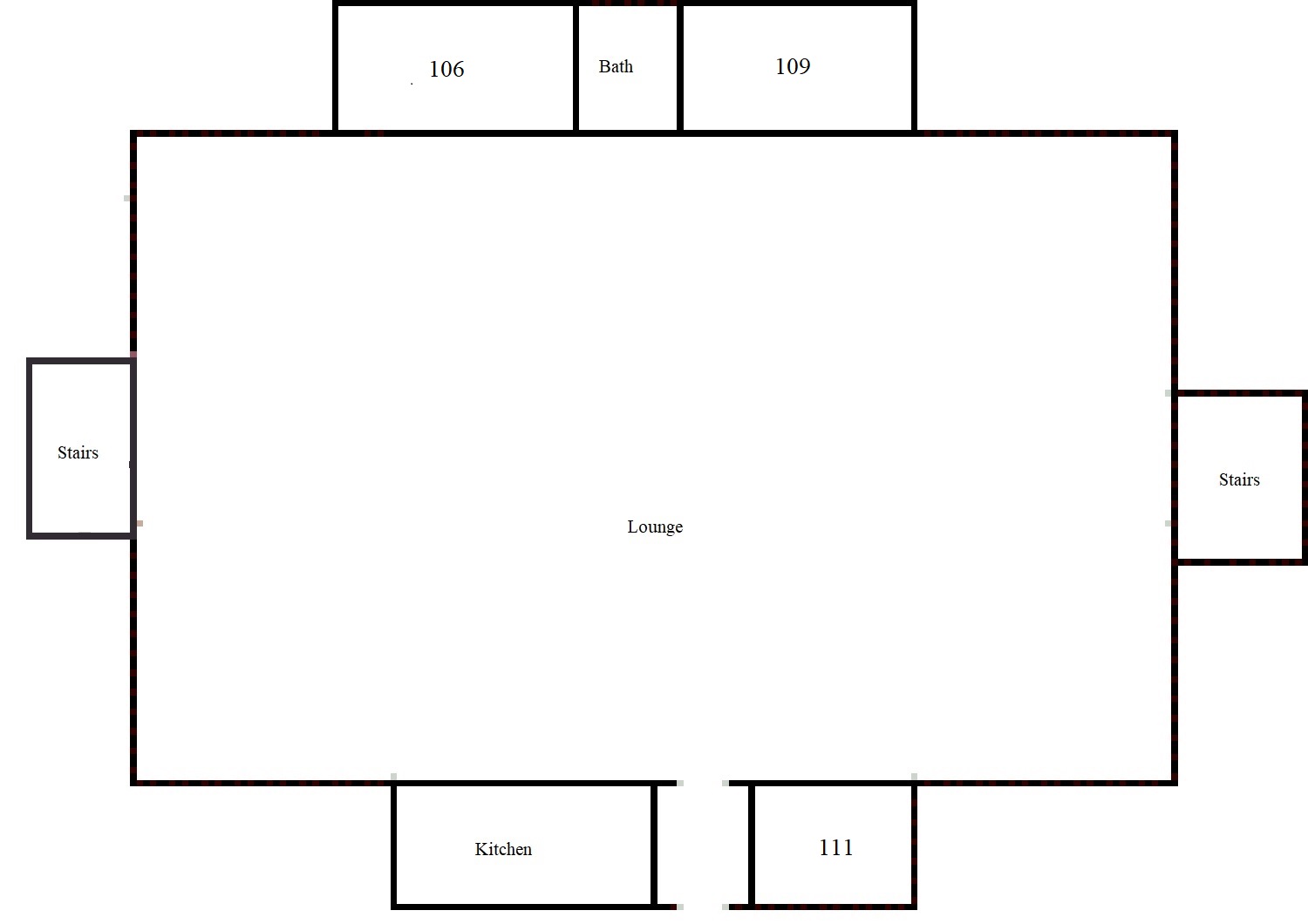
Floor Plans & Public Phones
Floor plans are provided to demonstrate differences between room types. Individual rooms vary. All dimensions and square footage are approximate and should not be relied upon as representation, express or implied, of your actual assigned room.
Furniture Specifications
Furniture Specifications
The following table provides information about the furniture in Green & Gold Village. Please note these specifications are only a guide, and furniture may vary from room to room.
Lofts, carpets, futons, TVs and microfridges can be rented from Dorms Direct. These items are set up in the room before check-in and removed after check-out in May by the supplying vendor.
| Furniture Type | Dimensions | Additional Info (Subject to Change) |
|---|---|---|
| Bed | 38"W x 86"L overall size |
Griffin and Eagle: "Traditional" spring beds can be adjusted to various heights up to 30" Lion: Beds are "junior lofts" and cannot be lofted using Dorms Direct equipment. These beds can rise higher than traditional beds, between 2 and 5 feet high in 3" increments. |
| Mattresses | 36" W x 80" L x 8" D | XL Twin Size |
| Dresser | 30"W x 24"D x 30"H | Three even-sized drawers |
| Built-In Closet with Upper Shelf & Hanger Rod | 24 3/8" W x 36 1/8" L x 72" H | One fixed 12" shelf above one metal clothes hanging rod |
| Desk | 50"W x 24"D x 30"H | One pedestal drawer, no hutch |
| Desk Chair | Black, contoured steel frame | On casters |
Skip to main content



















