Maple Hall
Opened in 2025.
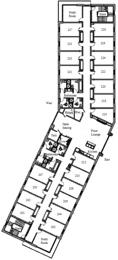
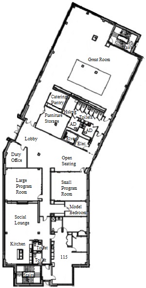
Maple Hall's approximately 150 residents enjoy living in double and single rooms on four floors with large, centralized lounges, cozy study rooms, and the nearby neighborhood dining hall. A portion of Maple Hall houses the Lavender House, a special-interest, co-curricular, co-residential community and is for students who identify as LGBTQ+ or are allies of the community.
Maple Hall is part of the West Woods 1 neighborhood along with Oak, Pine and Poplar Halls that connects to the Sadler Center and east campus via a scenic bridge.
Location & Building Accessibility
Explore nearby! Maple Hall is conveniently located near the neighborhood dining hall, is across the street from Kaplan Hall and is adjacent to the scenic bridge from the West Woods 1 neighborhood to the Sadler Center, providing easy access to east campus.
615 Ukrop Way
Williamsburg, VA
Mailing & Shipping Info
Amenities
-
Coed Housing
Houses all genders in each floor/wing/room. Includes both gender-inclusive & single-gender housing room options.
-
Air-Conditioned
All bedrooms are air-conditioned with thermostats.
-
Smoke-Free
All W&M residence halls are smoking & vape free.
-
Single-use Hall Baths
Single-use hall bathrooms are available to all residents.
-
Communal Kitchens
Kitchens are available on the second and fourth floors.
-
Laundry
The laundry room is available on the first floor.
-
Lounge & Study Areas
Lounges are available on each floor.
-
Study Areas
Study rooms are available on each floor.
-
Wireless & Wired Internet
Wireless internet service is available in all residence halls. An ethernet card and cable are required for wired internet. Email your building/room number and the room's ethernet jack number to support@wm.edu to activate the jack.
Furniture Specifications
Furniture Specifications
The following table provides information about the furniture in the residence halls. Please note these specifications are only a guide, and furniture may vary from room to room.
Lofts, carpets, futons, TVs and microfridges can be rented from Dorms Direct. These items are set up in the room before check-in and removed after check-out in May by the supplying vendor.
|
Furniture Type
|
Dimensions
|
Additional Information (Subject to Change)
|
|---|---|---|
| Desk | 23" W x 41 1/8" L x 30" H | Two box drawers, one file drawer, and one pencil drawer |
| Desk Shelf | 10" W x 40 3/8" L x 30" H | We are phasing out desk shelf units as we renovate and/or replace furniture. Currently, there are some desk shelf units in the following buildings: Camm, Dinwiddie, Fauquier, Gooch, Hardy, Hunt, Lemon, Nicholson, Sororities, Spotswood and Willis |
| Dresser | 24" W x 29" L x 30" H | Three even-sized drawers |
| Wardrobe | 24 3/8" W x 36 1/8" L x 72" H | One fixed 12" shelf above metal clothes hanging rod |
| Adjustable Wooden Frame Bed |
36" W x 80" L Head/Footboard 38" W x 35" H |
Space under bed: up to 30" |
| Mattresses |
XL Twin: 36" W x 80" L x 8" D |
Only Richmond Hall has full-size beds (53" W x 80" H). |
Skip to main content



