Oak Hall
Opened in 2025.
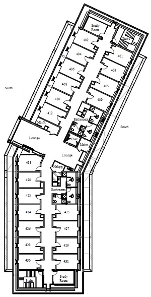
Oak Hall's approximately 150 residents enjoy living in double and single rooms on four floors with an Residents enjoy access to large, centralized lounges, communal hall kitchens, cozy study rooms at the end of each wing as well as the neighborhood dining hall located next door.
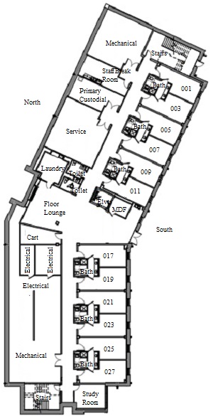
Oak Hall is part of the West Woods 1 neighborhood along with Maple, Pine, and Poplar Halls that connects to the Sadler Center and east campus via a scenic bridge. The first floor of Oak Hall includes a Great Room for meetings and studying as well as a Model Room available for tours through the W&M Admissions Office. Beginning in Fall 2026, the lower level, second and third floors of Oak Hall will house the Global Village, a living-learning community extending William & Mary's long-held world languages community tradition.
Location & Building Accessibility
Explore nearby! Oak Hall includes a Great Room for meeting and study space, a Model Room for visitors to tour with W&M Admissions, the neighborhood duty office, is conveniently located across the street from Kaplan Hall and is adjacent to the scenic bridge from the West Woods 1 neighborhood to the Sadler Center, providing easy access to east campus.
601 Ukrop Way
Williamsburg, VA
Mailing & Shipping Info
Amenities
-
Coed Housing
Houses all genders in each floor/wing, suite and/or room. Includes both gender-inclusive & single-gender housing suite and room options.
-
Air-Conditioned
All bedrooms are air-conditioned with thermostats.
-
Smoke-Free
All W&M residence halls are smoking & vape free.
-
Single-use Hall & Suite Baths
Single-use hall bathrooms are available to all residents. Suites & private bedrooms have attached bathrooms for use only by residents of the attached room(s).
-
Communal Kitchens
Kitchens are available on the first and third floors.
-
Laundry
The laundry room is available on the lower-level.
-
Lounge & Study Areas
Lounges are available on each floor plus a great room on the first-floor. Programming rooms are also available on the first-floor
-
Study Areas
The lower-level, second, third and fourth floors also have dedicated study rooms
-
Duty Office
On-site duty office.
-
Wireless & Wired Internet
Wireless internet service is available in all residence halls. An ethernet card and cable are required for wired internet. Email your building/room number and the room's ethernet jack number to support@wm.edu to activate the jack.
Furniture Specifications
Furniture Specifications
The following table provides information about the furniture in the residence halls. Please note these specifications are only a guide, and furniture may vary from room to room.
Lofts, carpets, futons, TVs and microfridges can be rented from Dorms Direct. These items are set up in the room before check-in and removed after check-out in May by the supplying vendor.
|
Furniture Type
|
Dimensions
|
Additional Information (Subject to Change)
|
|---|---|---|
| Desk | 23" W x 41 1/8" L x 30" H | Two box drawers, one file drawer, and one pencil drawer |
| Desk Shelf | 10" W x 40 3/8" L x 30" H | We are phasing out desk shelf units as we renovate and/or replace furniture. Currently, there are some desk shelf units in the following buildings: Camm, Dinwiddie, Fauquier, Gooch, Hardy, Hunt, Lemon, Nicholson, Sororities, Spotswood and Willis |
| Dresser | 24" W x 29" L x 30" H | Three even-sized drawers |
| Wardrobe | 24 3/8" W x 36 1/8" L x 72" H | One fixed 12" shelf above metal clothes hanging rod |
| Adjustable Wooden Frame Bed |
36" W x 80" L Head/Footboard 38" W x 35" H |
Space under bed: up to 30" |
| Mattresses |
XL Twin: 36" W x 80" L x 8" D |
Only Richmond Hall has full-size beds (53" W x 80" H). |




