Lemon Hall
Dedicated in 2006.
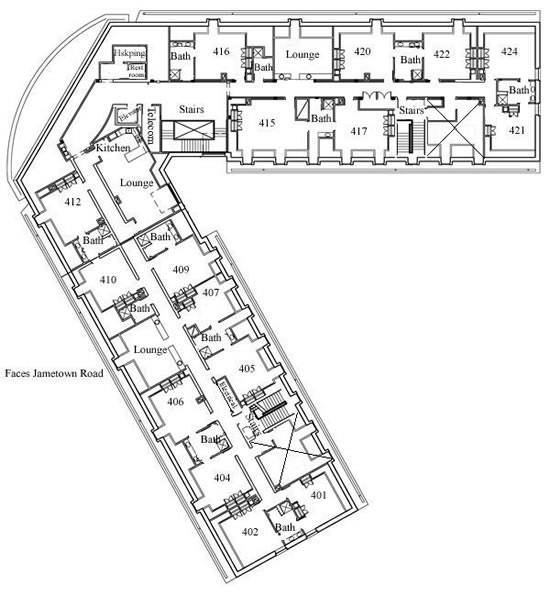
Lemon Hall's approximately 180 residents enjoy living in rooms that range from singles to doubles, suites, and cluster arrangements on four floors. Residents enjoy the multiple reading rooms, game rooms and lounges throughout the buildings.
Lemon Hall was named after an enslaved man owned by William & Mary in the late 18th century. He is the person for whom our Lemon Project is named. The Board of Visitors launched the university initiative in 2009 to explore William & Mary's part in slavery and segregation and our current efforts to overcome that legacy.
Location & Building Accessibility
Explore nearby! Lemon Hall is located next to Barksdale Field, facing Jamestown Road. Adjacent to New Campus, residents are conveniently located near Swem Library, Phi Beta Kappa Memorial Hall, the Integrated Science Center and other academic buildings.
700B Landrum Drive
Williamsburg, VA
Mailing & Shipping Info
Amenities
-
Coed Housing
Houses all genders in each floor/wing, suite and/or room. Includes both gender-inclusive & single-gender housing suite and room options.
-
Air-Conditioned
Room-controlled heating & air conditioning.
-
Communal Kitchen
Full kitchen on each floor.
-
Laundry
The laundry room is on the first floor.
-
Smoke-Free
All W&M residence halls are smoking & vape free.
-
Single-use Hall & Suite Baths
Single-use hall bathrooms are available to all residents. Suites & private bedrooms have attached bathrooms for use only by residents of the attached room(s).
-
Lounge & Study Areas
Residents enjoy the building's multiple reading rooms, game rooms and lounges.
-
Duty Office
The duty office is located on the first floor.
-
Wireless & Wired Internet
Wireless internet service is available in all residence halls. An ethernet card and cable are required for wired internet.
Furniture Specifications
Furniture Specifications
The following table provides information about the furniture in the residence halls. Please note these specifications are only a guide, and furniture may vary from room to room.
Lofts, carpets, futons, TVs and microfridges can be rented from Dorms Direct. These items are set up in the room before check-in and removed after check-out in May by the supplying vendor.
|
Furniture Type
|
Dimensions
|
Additional Information (Subject to Change)
|
|---|---|---|
| Desk | 23" W x 41 1/8" L x 30" H | Two box drawers, one file drawer, and one pencil drawer |
| Desk Shelf | 10" W x 40 3/8" L x 30" H | We are phasing out desk shelf units as we renovate and/or replace furniture. Currently, there are some desk shelf units in the following buildings: Camm, Dinwiddie, Fauquier, Gooch, Hardy, Hunt, Lemon, Nicholson, Sororities, Spotswood and Willis |
| Dresser | 24" W x 29" L x 30" H | Three even-sized drawers |
| Wardrobe | 24 3/8" W x 36 1/8" L x 72" H | One fixed 12" shelf above metal clothes hanging rod |
| Adjustable Wooden Frame Bed |
36" W x 80" L Head/Footboard 38" W x 35" H |
Space under bed: up to 30" |
| Mattresses |
XL Twin: 36" W x 80" L x 8" D |
Only Richmond Hall has full-size beds (53" W x 80" H). |



