Tribe Square
Dedicated in 2011.
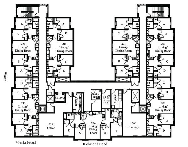
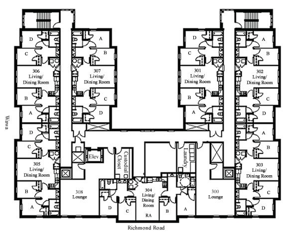
Tribe Square offers 56 upper-level students a unique living opportunity at the university with fourteen four-bedroom, two-bath apartments. Each consists of private bedrooms with a shared living space and kitchen. Residents lease their spaces for 11 ½ months, beginning with the opening of summer session one and ending the day after Commencement in the spring semester.
Just below the residential space are restaurants and other establishments that students and the Williamsburg community enjoy.
Location & Building Accessibility
Explore nearby! Tribe Square is located across the street from Blow Memorial Hall and next to Wawa, with convenient access to the Sunken Garden, Old Campus academic buildings and Colonial Williamsburg.
249 Richmond Road
Williamsburg, VA
Mailing & Shipping Info
Amenities
-
Coed Housing
Houses all genders in each building, floor and apartment. Includes both gender-inclusive & single-gender housing options.
-
Air-Conditioned
Self-controlled, central heating & air conditioning.
-
In-Unit Kitchens
All in-unit kitchens include a refrigerator, range/oven, microwave & dishwasher.
-
Laundry
Laundry rooms on each floor.
-
Smoke-Free
All W&M residence halls are smoking & vape free.
-
Private Baths
Every unit has two bathrooms, each with a full-size tub.
-
Lounge
Lounges on the 2nd & 3rd floors.
-
Wireless & Wired Internet
Wireless internet service is available in all residence halls. An ethernet card and cable are required for wired internet.
Additional Amenity Info
Lease Information
Tribe Square residents lease their spaces for 11 ½ months, beginning with the opening of summer session one and ending the day after Commencement in the spring semester, and billed in three installments. Subletting is not permitted. Like other on-campus apartments, Tribe Square is open during the Thanksgiving and Winter breaks.
Parking
Onsite parking by Tribe Square residents is not permitted. There is resident parking within walking distance. All residents must obtain a University resident parking permit and park in the designated parking locations on campus.
What kind of lighting is there?
There are overhead lights in the bathrooms and kitchen. Lamps are provided in the living area. There are no overhead lights in the bedrooms. Residents must provide their bedroom lighting.
Furniture Specifications
Furniture Specifications
The following table provides information about the furniture in the apartment-style residences. Please note these specifications are only a guide, and furniture may vary from room to room.
Lofts, carpets, futons, TVs and microfridges can be rented from Dorms Direct. These items are set up in the room before check-in and removed after check-out in May by the supplying vendor.
| Furniture Type | Dimensions | Additional Info (Subject to Change) |
|---|---|---|
| Bedroom | ||
| Adjustable Wooden Frame Bed | 36" W x 80" L Head/Footboard: 38" W x 35" H |
Space under bed: up to 30" |
| Mattress | XL Twin Size: 36"W x 80"H x 8"D |
Tribe Square has full size (53"W x 80"H) |
| Dresser | 30"W x 24"D x 30"H | Three even-sized drawers |
| Built-In Closet | size varies |
Closets typically have one fixed 12" shelf near the top of the closet. Majority of Ludwell Apartments do not have closets and are provided with wardrobes 24 3/8" W x 36 1/8" L x 72" H |
| Desk |
23" W x 41 1/8" L x 30" H | Two box drawers, one file drawer and one pencil drawer |
| Desk Chair | Black, contoured steel frame | On casters |
| Living & Dining Area | ||
| Table with chairs | varies by hall | |
| 3-Cushion Sofa | varies by hall | |
| Coffee Table | varies by hall | |
| End Table | varies by hall | |
| Coordinating Upholstered Chair | varies by hall | Available in Ludwell Apartments only |
Skip to main content
Tribe Square Apartments Floor Plan.
