Old Dominion Hall
Opened in 1927. Renovated in 1937, 1972 & 2025.
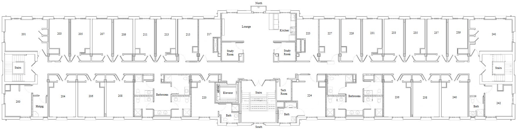
Old Dominion (OD) Hall's 123 residents enjoy living on five recently renovated floors. During the fall, residents of OD have a short walk to Zable Stadium to cheer on the Tribe during Saturday football games.
Communal kitchenette on each are available on the lower-level, second and third floors and laundry is located on the lower-level with programming rooms and large community lounges. Hall Council also works with residents on planning activities for the building. It is common to find residents taking a study break at the outside picnic tables with hallmates and friends!
Location & Building Accessibility
Explore nearby! Old Dominion Hall is conveniently located across the street from the Sadler Center, providing easy access to dining facilities, the post office and the Student Exchange convenience center.
201 James Blair Drive
Williamsburg, VA
Mailing & Shipping Info
Amenities
-
Coed Housing
Houses all genders in each floor/wing, suite and/or room. Includes both gender-inclusive & single-gender housing suite and room options.
-
Air-Conditioned
All bedrooms are air-conditioned with thermostats.
-
Smoke-Free
All W&M residence halls are smoking & vape free.
-
Single-use Hall & Suite Baths
Single-use hall bathrooms are available to all residents. Suites & private bedrooms have attached bathrooms for use only by residents of the attached room(s).
-
Communal Kitchens
Kitchens are available on the lower-level, second, and third floors.
-
Laundry
The laundry room is available on the lower-level.
-
Lounge & Study Areas
Lounges are available on each floor plus a programming room on the lower-level.
-
Study Areas
The first, second, and third floors also have dedicated study rooms
-
Duty Office
On-site duty office.
-
Wireless & Wired Internet
Wireless internet service is available in all residence halls. An ethernet card and cable are required for wired internet.
Furniture Specifications
Furniture Specifications
The following table provides information about the furniture in the residence halls. Please note these specifications are only a guide, and furniture may vary from room to room.
Lofts, carpets, futons, TVs and microfridges can be rented from Dorms Direct. These items are set up in the room before check-in and removed after check-out in May by the supplying vendor.
|
Furniture Type
|
Dimensions
|
Additional Information (Subject to Change)
|
|---|---|---|
| Desk | 23" W x 41 1/8" L x 30" H | Two box drawers, one file drawer, and one pencil drawer |
| Desk Shelf | 10" W x 40 3/8" L x 30" H | We are phasing out desk shelf units as we renovate and/or replace furniture. Currently, there are some desk shelf units in the following buildings: Camm, Dinwiddie, Fauquier, Gooch, Hardy, Hunt, Lemon, Nicholson, Sororities, Spotswood and Willis |
| Dresser | 24" W x 29" L x 30" H | Three even-sized drawers |
| Wardrobe | 24 3/8" W x 36 1/8" L x 72" H | One fixed 12" shelf above metal clothes hanging rod |
| Adjustable Wooden Frame Bed |
36" W x 80" L Head/Footboard 38" W x 35" H |
Space under bed: up to 30" |
| Mattresses |
XL Twin: 36" W x 80" L x 8" D |
Only Richmond Hall has full-size beds (53" W x 80" H). |
Skip to main content




