Delta Gamma
Dedicated in 1928.
The Delta Gamma house is a part of Sorority Court. Each house has unique qualities and allows members to live in the community with their best friends.
Fraternity and sorority housing is designed to affirm and strengthen fraternity and sorority life as an important William & Mary tradition. We seek to create living environments that advance the highest and historical values of fraternities and sororities that members, alums and the university as a whole will respect and appreciate.
Location & Building Accessibility
Explore nearby! The Delta Gamma house in Sorority Court is situated near Historic Campus. Residents have easy access to the Campus Center, Sunken Garden, academic buildings and the festivities of Colonial Williamsburg.
129 Richmond Road
Williamsburg, VA
Mailing & Shipping Info
Amenities
-
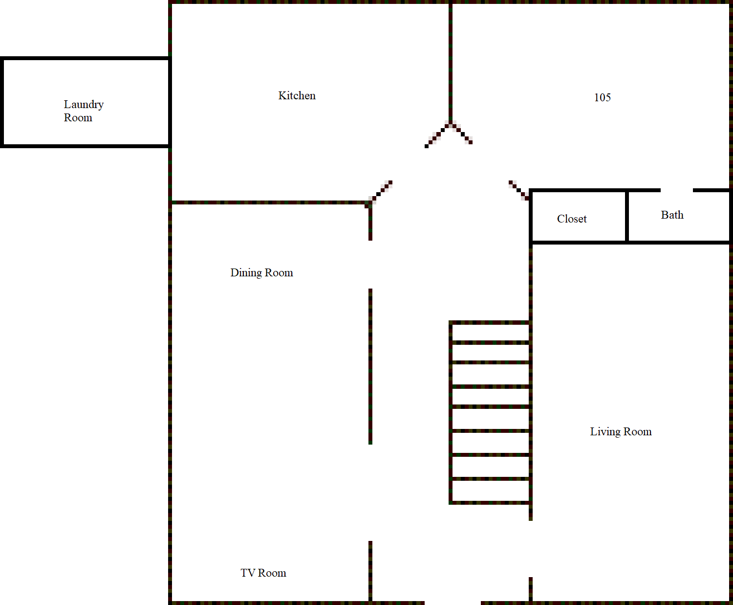
Communal Kitchen
Full kitchen on the first floor.
-
Laundry
Laundry room on the first floor.
-
Smoke-Free
All W&M residence halls are smoking & vape free.
-
Hall Baths
Hall bathrooms are located on each floor.
-
Lounges
The living room, dining room & TV room are located on the first floor.
-
Wireless & Wired Internet
Wireless internet service is available in all residence halls. An ethernet card and cable are required for wired internet.
Furniture Specifications
Furniture Specifications
The following table provides information about the furniture in the residence halls. Please note these specifications are only a guide, and furniture may vary from room to room.
Lofts, carpets, futons, TVs and microfridges can be rented from Dorms Direct. These items are set up in the room before check-in and removed after check-out in May by the supplying vendor.
|
Furniture Type
|
Dimensions
|
Additional Information (Subject to Change)
|
|---|---|---|
| Desk | 23" W x 41 1/8" L x 30" H | Two box drawers, one file drawer, and one pencil drawer |
| Desk Shelf | 10" W x 40 3/8" L x 30" H | We are phasing out desk shelf units as we renovate and/or replace furniture. Currently, there are some desk shelf units in the following buildings: Camm, Dinwiddie, Fauquier, Gooch, Hardy, Hunt, Lemon, Nicholson, Sororities, Spotswood and Willis |
| Dresser | 24" W x 29" L x 30" H | Three even-sized drawers |
| Wardrobe | 24 3/8" W x 36 1/8" L x 72" H | One fixed 12" shelf above metal clothes hanging rod |
| Adjustable Wooden Frame Bed |
36" W x 80" L Head/Footboard 38" W x 35" H |
Space under bed: up to 30" |
| Mattresses |
XL Twin: 36" W x 80" L x 8" D |
Only Richmond Hall has full-size beds (53" W x 80" H). |
Skip to main content


